Альбомы узлов Revit

Соответствует BIM-стандарту 2.0
Описание

Альбом узлов включает в себя 213 узлов примыканий. Из них 97 узлов примыканий плоских кровель, для 10 строительных систем и 116 узлов по фундаментам, для 15 систем.

Альбом разработан в 2019 - 2025 версиях Autodesk Revit. Файл имеет расширение *.rvt.

При открытии файла, пользователя встречает «ТН-Стартовое окно», в котором имеются ссылки на чертежные виды узлов, находящихся на «превью». 

Через стартовое окно можно попасть в выбранный узел одной из систем (чертежный вид). Структура альбомов разделена по типам систем в разделе листы.

Каждый узел разработан с помощью стандартного функционала Autodesk Revit, с применением семейств категории «Элементы узлов», «Цветовые области», а также «Аннотационные обозначения». Названия семейств имеют префикс «TN», для группировки в диспетчере проекта.

 

В каталоге также присутствует лист «2 - Условные обозначения», на котором имеется расшифровка именования всех разработанных семейств:

FIX - Крепеж

LIN - Линия

MAT - Вспомогательный материал

PRF - Профилированные элементы

RAW - Элементы дренажа

WPR - Гидроизоляция

ANN - Аннотация

VEN - Вентиляция

FIN - Отделка

TPR – Теплоизоляция

Каждый узел оформлен на отдельном листе, что облегчает процесс копирования узла в проек.

 

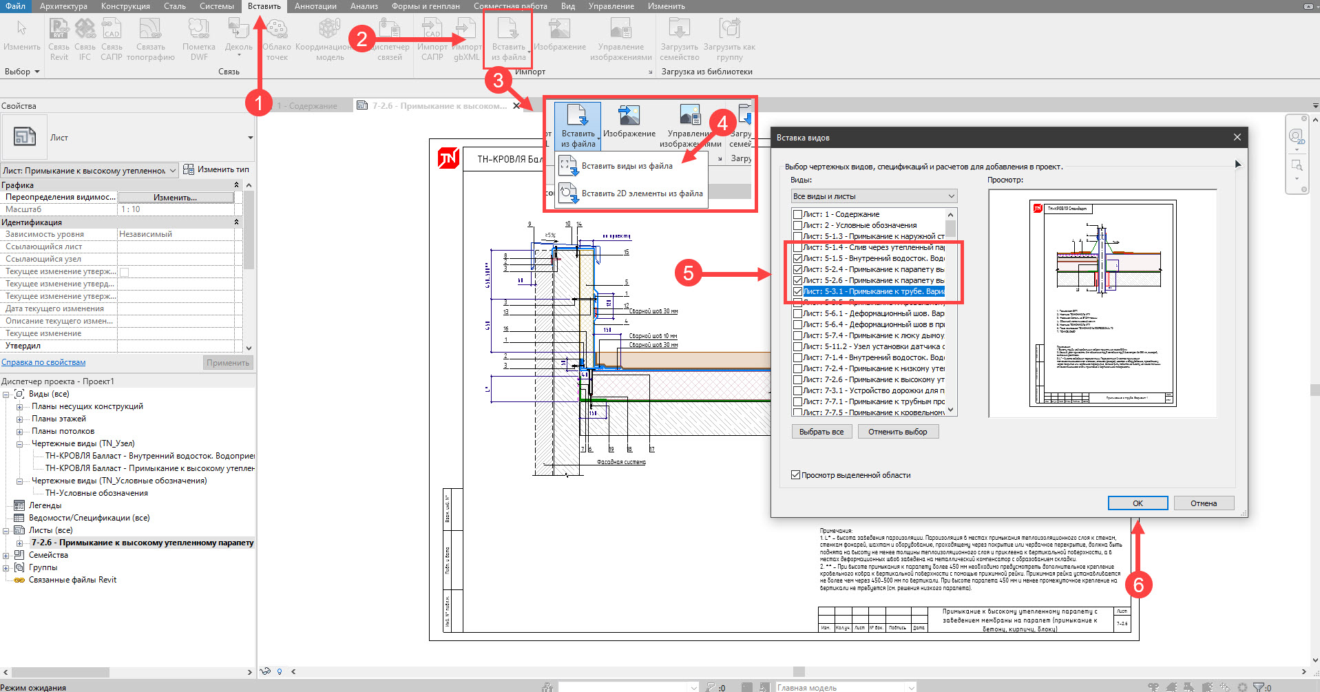
Копирование узлов из альбома в проект может выполняться несколькими способами:

  1. Пользователь выбирает чертежный вид или лист в диспетчере проекта, далее нажать Ctrl+C, а затем, перейдя в свой проект нажать Ctrl+V, после чего вид или лист с содержимым переносится в проект;
  2. При помощи команды «Вставить виды из файла» (удобен, когда необходимо импортировать узлы в проект).

Важно! Для корректного отображения типов и весов линий, пользователю необходимо работать на шаблоне ADSK, либо же применить стили из текущего шаблона, посредством копирования весов линий.

 

 

Параметры
Категория
Архитектурные решения
Другие модели производителя
Модели других производителей