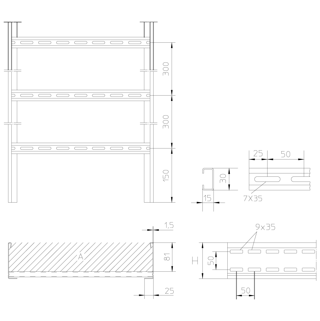
Лестничный лоток. Перфорированный лоток. Кабельный лоток. Ширина 200-600 мм. Высота 60-150 мм. Длина 3000 / 6000 мм.

Описание

Лестничный лоток. Перфорированный лоток. Кабельный лоток. Ширина 200-600 мм. Высота 60-150 мм. Длина 3000 / 6000 мм.

Для организации силовых и слаботочных кабельных трасс / линий внутри помещений и на открытых площадках.

Почему проектировщики выбирают нашу BIM-модель?

1. «Живая» геометрия под экспертизу
В модели учтены реальные габариты (высота полки, толщина металла, радиус гиба). Вы сразу увидите пересечения с воздуховодами и трубопроводами — никаких «невидимых» тел. Это экономит 2-3 итерации согласования.

2. Параметры, которые влияют на спецификацию
В отличие от «пустышек» других производителей, наша модель тянет за собой правильные данные в ведомость:

  • Тип лотка (перфорированный / сплошной / лестничный).

  • Длина секции (3000 / 6000 мм).

  • Наличие аксессуаров в сборке (соединители).

3. Адаптация под климатику и среду (BIM + спецификация)

  • (F) – Горячеоцинкованный (агрессивные среды, улица)

  • (S) – Сендзимир (сухие помещения, офисные помещения, помещения с неагрессивной средой)

  • (E) – AISI 304 (пишевая промышленность, фармацевтика)

  • (E4) – AISI 316 (морская среда, химическая промышленность, любая другая агрессивная среда)

  • (PL) – Полимерное покрытие (морская среда, химическая промышленность, любая другая агрессивная среда соответсвует варианту из нержавейющей стали)

4. Российский производитель
В параметрах модели прописаны актуальные артикулы. Вы закладываете в проект ПИК-ЭНЕРГО:

  • Завод в Московской области — отгрузка за 1-3 дня.

  • Немецкие технологии PUK-Werke (2012-2022) — геометрия и качество узлов проверены десятилетиями.

  • Поддержка в РФ

Что в составе?

✅ Нагрузочные таблицы — встроенные проверки пролета между опорами.
✅ Набор типоразмеров: ширина 50–600 мм, высота борта 50–100 мм.
✅ Аксессуары отдельными семействами (повороты, тройники, отводы) с автоматической стыковкой.

Где это уже работает?

Продукция ПИК-ЭНЕРГО прошла проверку на объектах "ЕвроХим", "Газпром Лахта", "Северный поток 2", "Амурский ГПЗ", "Афинский НПЗ" и многие другие промышленные, коммерческие и гражданские проекты.

Вся продукция сертифицирована. Имеем сертификаты, позволяющие использовать нашу продукцию при прокладке Огнестойких кабельных линий (ОКЛ).

Параметры
Категория
Электроснабжение
Категория
Кабельные лотки (соединители, крышки, ответвители)
Материал
Сталь с полимерным покрытием
Материал
Сталь нержавеющая
Материал
Сталь оцинкованная (методом горячего цинкования)
Материал
Сталь оцинкованная
Другие модели производителя
PIK-ENERGO / ПИК-ЭНЕРГО
Кабеленесущая система Smart3D SmartPlant. (Кабеленесущие конструкции. Кабельная трасса. Кабельная система. Кабельные лотки и монтажные системы)
PIK-ENERGO / ПИК-ЭНЕРГО
Кабеленесущая система AutoCAD (Кабеленесущие конструкции. Кабельная трасса. Кабельная система. Кабельные лотки и монтажные системы)
PIK-ENERGO / ПИК-ЭНЕРГО
Листовые лотки. Кабельные лотки. Кабельный лоток. Перфорированный лоток, неперфорированный лоток. Семейство лотков.
PIK-ENERGO / ПИК-ЭНЕРГО
Листовой лоток. Перфорированный лоток. Кабельный лоток. Ширина 50-600 мм. Высота 35-110 мм. Длина 3000 мм.
PIK-ENERGO / ПИК-ЭНЕРГО
Листовой лоток. Неперфорированный лоток. Глухой лоток. Сплошной лоток. Кабельный лоток. Ширина 50-600 мм. Высота 35-110 мм.
PIK-ENERGO / ПИК-ЭНЕРГО
Лестничный лоток. Вертикальный лоток. Кабельный лоток. Ширина 200-1200 мм. Длина 3000 / 6000 мм.
PIK-ENERGO / ПИК-ЭНЕРГО
Монтажная система. Кабельный лоток. (STRUT (СТРАТ), кронштейн, подвес, консоль настенная, стойка потолочная, профиль, опора, КНС)
PIK-ENERGO / ПИК-ЭНЕРГО
Угол лотка листового кабельного (Угол горизонтальный 90 / 45 градусов, поворот, ответвитель Т-образный, Х-образный (крестовина), переходник. Фасонные элементы)
PIK-ENERGO / ПИК-ЭНЕРГО
Угол лотка лестничного (Угол горизонтальный 90 / 45 градусов, поворот, ответвитель Т-образный, Х-образный (крестовина), переходник. Фасонные элементы лестничный лоток)
Модели других производителей