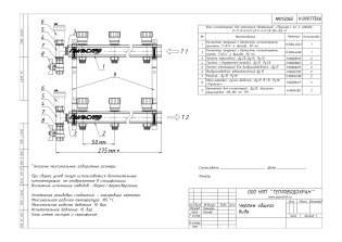
Коллекторный узел для отопления квартирный на 4 отвода, подключение справа
Описание
Узел коллекторный квартирный предназначены для использования в двухтрубных системах отопления с горизонтальной лучевой разводкой контуров отопления и системах распределения холодной и горячей воды.
Параметры
Категория
Водоснабжение и канализация
Категория
Фитинги (фланцы, тройники, коллекторы) и трубопроводы
Материал
Материал
Материал
Поливинилхлорид ПВХ (PVC)
Другие модели производителя
Pulsar/ Пульсар
Датчики температуры сопротивления ТСПТВХ-В «Пульсар»
Pulsar/ Пульсар
Квартирный счетчик холодной воды «Пульсар» Ду15 - Н00003553
Pulsar/ Пульсар
Турбинные счетчики воды «Пульсар» Ду50-250
Pulsar/ Пульсар
Компенсатор гидроударов «Пульсар» Ду15 Ру10
Pulsar/ Пульсар
Устройство сбора и передачи данных «Пульсар»
Pulsar/ Пульсар
Общедомовые и квартирные ультразвуковые теплосчетчики «Пульсар» Ду15-200
Pulsar/ Пульсар
Датчики давления «Пульсар»
Pulsar/ Пульсар
Установочные присоединительные комплекты «Пульсар» Ду15-50
Pulsar/ Пульсар
Вычислитель тепловой энергии «Пульсар» — Н00009840
Pulsar/ Пульсар
Клапаны соленоидные газовые «Пульсар» Ду15-32
Pulsar/ Пульсар
Система автоматизированного контроля загазованности «Пульсар» CO-CH4
Pulsar/ Пульсар
Краны шаровые запорные и для монтажа термодатчика «Пульсар» Ду15-20
Модели других производителей
DINARM/ ДИНАРМ
АПТ,ВПВ (ПК) оборудование для пенных Установок
GRAS / ГРАС
Газобетонный Вентиляционный О-Блок с 1 отверстием 250 мм D400 B2.5 ТМ "ГРАС"
ESKM/ Электросевкавмонтаж
Косынка боковая усиленная КБУ для стоек СТ
Uni-fitt/ Юни-фитт
Насосно-смесительная группа MULTIMIX Uni-Fitt с насосом Grundfos UPSO 25/65 130
Uni-fitt/ Юни-фитт
Насосно-смесительная группа SOLOMIX X Uni-Fitt с насосом Grundfos UPSO 25/65 130
Uni-fitt/ Юни-фитт
Насосно-смесительная группа SOLOMIX X Uni-Fitt с насосом Wilo Para 25/6-130
Tropik Line/ Тропик Лайн
Тепловая завеса. Серия T100
Wilo/ Вило
Установки повышения давления Wilo COR-3 MVI SKw-EB-R (с отдельным ШУ)
Dimplex/ Димплекс
Электрический камин Dimplex Cassette 500
Dimplex/ Димплекс
Электрический камин Dimplex Cassette 500 (с дровами)
Dimplex/ Димплекс
Электрический камин Dimplex Ignite XLF74
Dimplex/ Димплекс
Электрический камин Dimplex Prism BLF5051